The Adventurer 80RB is a lightweight, hard-side camper that's become a cornerstone of our lineup. Built for short and long-bed trucks, it features a smart layout, full wet bath, and true four-season performance - making it one of the most trusted and widely chosen models we offer.

Built with premium materials and true four-season insulation for long-term reliability on and off the road.

Our TRU Weight promise means no hidden add-ons - just honest specs, real numbers, and no surprises.

Proudly family-owned and trusted for over 55 years, with a proven track record in both retail and rental fleets across North America.

Smart, accessible construction means easier maintenance, faster repairs, and less downtime - keeping your adventure going.
The Overlander edition trim is an optional upgrade that's built for off-grid travel beyond the pavement and campgrounds with full hookups. This package adds 400W of rooftop solar, portable bluetooth speakers, and full synthetic leather seating for comfort and ease of cleaning. Combined with the exclusive Overlander graphics, this trim let's you stand out, yet fit in with nature.
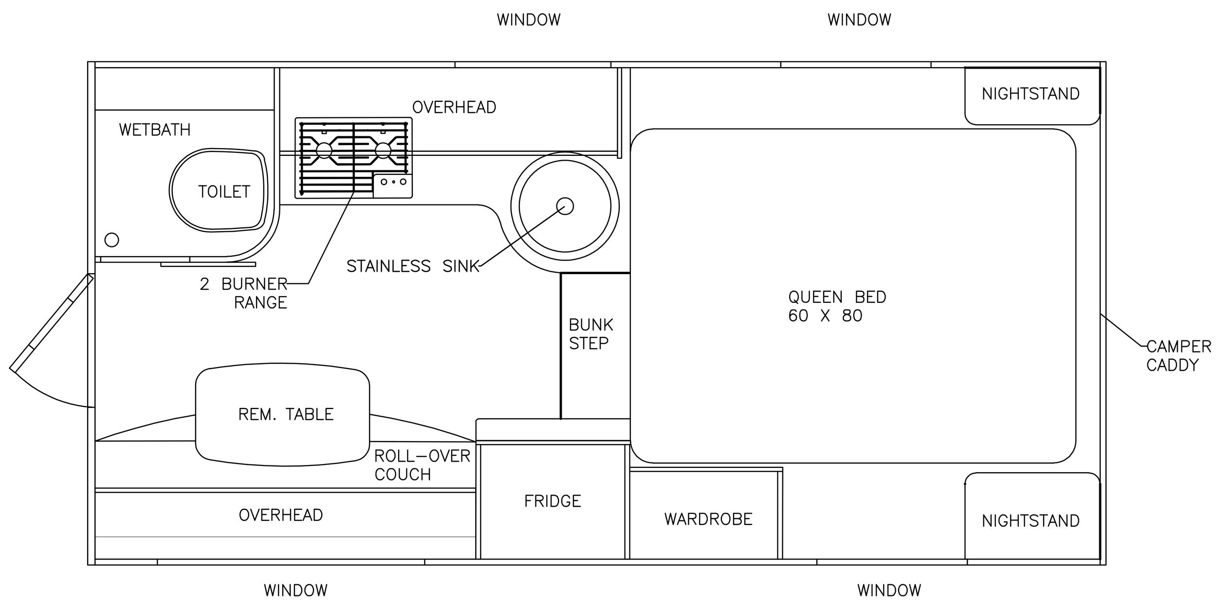
At just 8 feet in floor length, the 80RB is proof that good things come in small, smart packages. It features a full rear galley, a wet bath with a flush toilet and shower, a north/south queen bed, and a convertible dinette - all in a compact layout that fits both short and long-bed trucks. Whether you're solo or with a partner, this camper gives you the essentials without the bulk.
The 80RB is built to handle every season - not just warm-weather weekends. With closed-cell block foam insulation, double-pane windows, and a fully insulated floor, this camper is ready for cold-weather trips and shoulder-season adventures. It’s built the right way, so you can travel confidently all year long.
We don’t play games with our weight ratings. Every Adventurer camper, including the 80RB, comes with a verified TRU Weight sticker so you know exactly what you're getting - no surprises, no hidden weight packages. With a dry base weight of 1,787 lbs, the 80RB is one of the most capable campers on the market today.
Specifications
1752 lbs
8'4"
4
heavy half-ton and larger long and short box trucks
30.5”
60" x 80"
42" x 68"
78”
81" (92" with optional a/c)
90"
15 GAL / 57 L
6 GAL / 23 L
6 GAL / 23 L
20 LBS

A true north/south 60" x 80" queen bed offers full-length sleeping space without the need to climb over your partner - just like home, but better views.
The exclusive 68” roll-over sofa with removable table easily converts into a 42” x 68” bed, offering flexible seating, dining, and sleeping space in one smart design.
From full-extension drawers to dual wardrobe closets and overhead cabinets, the 80RB maximizes storage without sacrificing floor space.
"The Adventurer 80RB offers a very smart floor plan at an attractive weight, center of gravity, and price. The sofa offers residential-style seating comfort, something many truck campers lack."

"Fortunately, the Adventurer 80RB is one of the lightest hard side truck campers in the market. It weighs only 1,870 pounds with options including a 90-pound air conditioner."

"The 80RB is Adventurer's lightweight, value leader and fits most popular light-duty, full-size super short (5.5'), short (6', 6.5', 6.75') and long-bed (8') trucks."

Connect with our team to explore the possibilities and build your dream rig.